Interiér developerského bytu
Investor
soukromý
Rok
2025
Místo
Uherské Hradiště
Typ
Novostavba
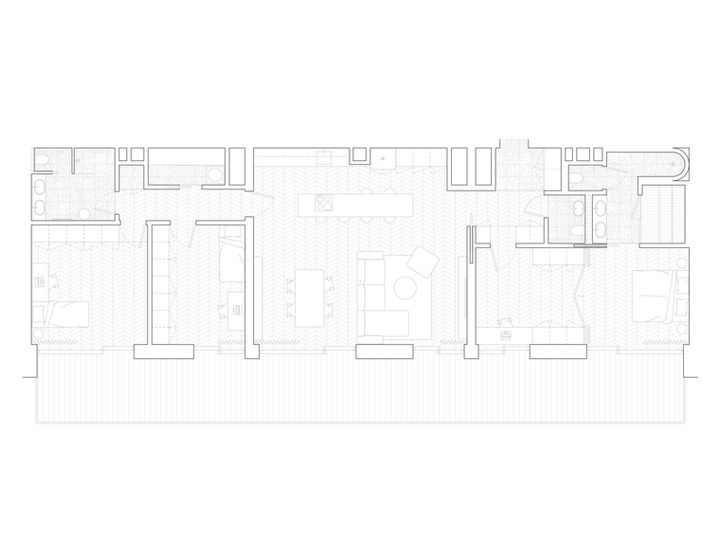
Projekt interiéru novostavby v Uherské Hradiště vznikal v úzké návaznosti na architektonický návrh domu jako celku. Investor oslovil studio ještě před zahájením samotné stavby s cílem navrhnout interiér, který by přirozeně navazoval na již hotovou a kvalitně řešenou dispozici. Základní prostorové uspořádání domu bylo od původních architektů promyšlené a funkční, proto byly dispoziční zásahy omezeny pouze na drobné úpravy.
Návrh se soustředil především na hlavní obytný prostor, ložnici a pracovnu. Dispoziční změny se odehrávají zejména prostřednictvím vestavěného nábytku, který pomáhá zpřesnit fungování jednotlivých místností. V ložnici a pracovně je právě tímto způsobem definováno uspořádání prostoru. Součástí návrhu bylo také nově koncipované řešení dětských pokojů, které reaguje na budoucí potřeby rodiny. Pokoje, koupelny, chodby a ostatní části domu zůstaly ve fázi dispozičního řešení bez detailního interiérového návrhu.



















